LUPA - Architecture Studio, Lisbon, Portugal | Unidade de Saúde, USF, Ermesinde, Centro de Saúde Gandra
Projecto da Unidade de Saúde de Cuidados Primários de Ermesinde, em Valongo
architecture,public,health,clinic,primary,care,cuidados,primarios,unidade,saude,eremesinde,usf,urap,lupa,studio,obra,publica,arquitectura,arquitetura,contemporanea,contemporary,proposal,sustentavel,sustentabilidade em arquitetura,valongo
23264
portfolio_page-template-default,single,single-portfolio_page,postid-23264,ajax_fade,page_not_loaded,,select-theme-ver-4.6, vertical_menu_transparency vertical_menu_transparency_on,popup-menu-text-from-top,wpb-js-composer js-comp-ver-5.5.5,vc_responsive

2404_USF.ERM

Unidade de Saúde – Ermesinde

 

Conceito

O programa definido pela ULS São João  apontava para a criação de dois polos quase independentes, com alguns serviços partilhados.

Partindo de uma ideia inicial de organização funcional e formal de volume em “O” distribuíram-se os programas pelos 2 pólos, em dois pisos sobrepostos.

O pólo das unidades com maior relação directa com a comunidade no piso térreo composto por  URAP, CDI, UCC e ECSCP.

O segundo pólo dedicado à USF situa-se no piso superior.

Em complemento é criada uma pequena área em cave, aproveitando o declive natural, dedicada à entrada de pessoal com vestiários e áreas técnicas.

 

A organização em ”O” em torno de um pátio central tipo claustro permite encurtar distâncias tanto para profissionais como para utentes, optimizando as relações funcionais e distinguindo as circulações com diferentes graus de acesso de público. Deste princípio base surgem as diferentes alas do edifício.

A nascente e poente as alas de gabinetes e salas das várias unidades ligadas transversalmente pelas restantes alas. A sul a ala dedicada á recepção e espera dos utentes com relações visuais quer para o exterior quer para o pátio interior. A norte a ala dedicada aos profissionais.

A proposta formal e volumétrica, interior e exterior, pretende-se de compreensão e apropriação simples e rápida pelos utentes e profissionais.

A modularidade da solução de compartimentação interior permitirá uma gestão e adaptação futuras da utilização do edifício permitindo a aglutinação ou partição de salas e gabinetes.

O acesso principal de utentes à US Ermesinde é realizado na esquina sudeste do edifício, na zona de maior exposição face à envolvente urbana, sendo distinta da restante fachada de ritmos certos e regulares de vãos de pequena largura. A entrada do edifício é ligeiramente sobrelevada em relação à rua (cerca de 45cm) dando acesso ao átrio principal.

 

Piso térreo (Piso 0)

O átrio principal no piso térreo tem acesso às circulações verticais de escada e elevador no canto sudeste e permite o controlo do acesso pela segurança bem como um fácil acesso à zona de recepção e secretaria das unidades. Este átrio é comunicante com a sala de espera que se pretende serena, de relação forte com o pátio interior. A sala de espera em posição central permite o acesso à alas nascente e poente, esta última com acesso a instalações sanitárias dos utentes.

A organização por alas permite a distribuição das unidades do piso térreo de forma a potenciar as relações com a comunidade nomeadamente pela colocação da Unidade de Cuidados na Comunidade (UCC) na ala nascente. A poente ficarão localizadas por ordem de acesso, o Centro de Diagnóstico Integrado (CDI), a Unidade de Recursos Assistenciais Partilhados (URAP) e a Equipa Comunitária de Suporte em Cuidados Paliativos (ECSCP). A norte localizam-se a sala de pessoal, armazém (cofre da UCSCP) e instalação sanitária, bem como a sala de reuniões comuns a todas as unidades do edifício com possibilidade de divisão em duas salas por intermédio de divisória amovível, com acesso que pelo corredor de gabinetes (semipúblico) como pelo corredor de pessoal de acesso restrito aos profissionais.

 

 

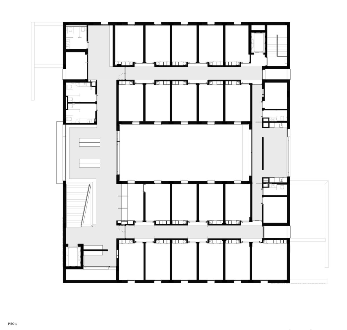
Piso superior (Piso 1)

Tal como no piso no piso térreo o átrio tem acesso às circulações verticais de escada e elevador no canto sudeste e permite um fácil acesso à zona de recepção e secretaria da Unidade de Saúde Familiar (USF). Este átrio é comunicante com a sala de espera que se pretende serena, de relação forte com o pátio interior. A sala de espera em posição central permite o acesso à alas nascente e poente, esta última com acesso a instalações sanitárias dos utentes. A poente existe também a sala de espera infantil com instalação sanitária própria e a nascente é delimitado o espaço para cantinho de amamentação. Esta organização permite a distribuição da unidade em duas alas, cada uma com sala de enfermagem própria e 8 a 9 gabinetes de consulta. Como no piso inferior a ala norte contém a sala de pessoal e duas instalações sanitárias, bem como os armazéns clinico e hoteleiro.

 

 

 

 

 

 

Cave (Piso -1)

No canto noroeste do edifício localiza-se a entrada de pessoal que dará acesso à circulação vertical de escadas e elevador dedicadas aos profissionais permitindo a separação clara de circuitos. A área em cave será ocupada pelos vestiários / balneários dos profissionais e algumas áreas técnicas e de resíduos.

 

 

 

 

 

 

 

Programa: Unidade de Saúde de Cuidados Primários (USF + URAP + UCC + UCSP + CDI + ECESP)

Localização: Ermesinde

Ano/Fase: Projecto: 2024, Obra actualmente em curso;

Área: 1´635 m² Área Bruta

Dono de Obra: Município de Valongo

Arquitectura: LUPAstudio

Especialidades: Nichos Urbanos

Date

26/01/2026

Category

Equipamento