Ana Léon, Gestos – MAAT, 2025
Fomos convidados a ajudar na concepção do layout da exposição da artista Ana Léon, denominada “Gestos”.
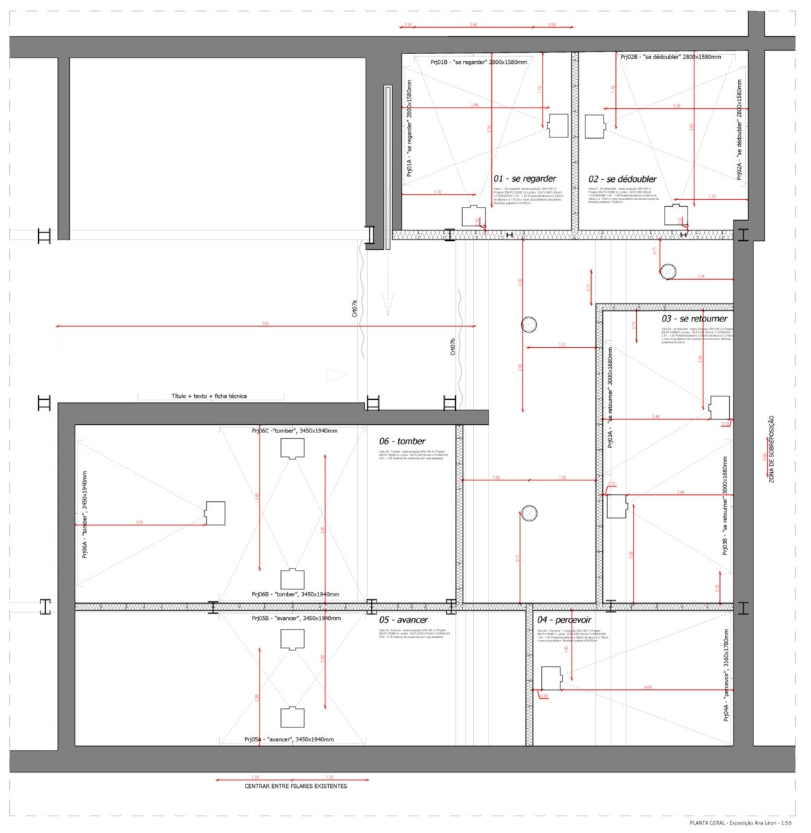
Esta exposição consiste na adaptação de uma zona expositiva no edifício “Central Tejo” do MAAT, situada no piso -1, na sala Cinzeiro 8. Para o efeito foram identificados os elementos a manter e/ou alterar, para permitir o funcionamento de seis filmes em loop da autoria da artista, num percurso convidativo à imersão no imaginário da artista.
Conforme o site do MAAT (https://www.maat.pt/pt/event/ana-leon-gestos):
“Os modelos de que Ana Léon se serve são os Action Man. Têm cerca de 25 cm de altura, são inteiramente formados por componentes plásticos e metálicos, e são perfeitamente articulados (pescoço, braços e pernas, pulsos e artelhos). A escolha dos bonecos com que trabalha não é determinada pelo facto de serem ou não modelos masculinos, mas pela neutralidade expressiva (ou mesmo inexpressividade) e pela mobilidade física que os define. João Pinharanda, curador, escreve para o guia de exposição: «Ana Léon boicota também o papel convencional dos tradicionais bonecos animados, ao negar-lhe toda a dimensão narrativa: de facto, nos seus pequenos filmes, nada se passa ou o que se passa é exclusivamente da ordem do descritivo”.
O processo de apoio consistiu em identificar as condicionantes estruturais e de infraestruturas, bem como as limitações decorrentes do próprio contéudo – limitações técnicas com implicações espaciais. Deste modo, alteraram-se alguns dos elementos existentes no espaço de modo a permitir dimensões adequadas a cada um dos loops e respectivos enquadramentos (quantidade de projectores, afastamentos, etc.) para permitir uma experiência funcional aos utilizadores, juntamente com os restantes intervenientes na montagem técnica final.










